When you're in the studio painting, there are a lot of people in there with you -
your teachers, friends, painters from history, critics...
and one by one if you're really painting, they walk out.
And at the end, if you're really painting you walk out too.
Lucid Frame of Creation
How do you answer with clarity and simplicity in such a complex and a multi-faceted process like that of Creation?
What are the spatial structures that respond to the ever-changing needs of a creator?
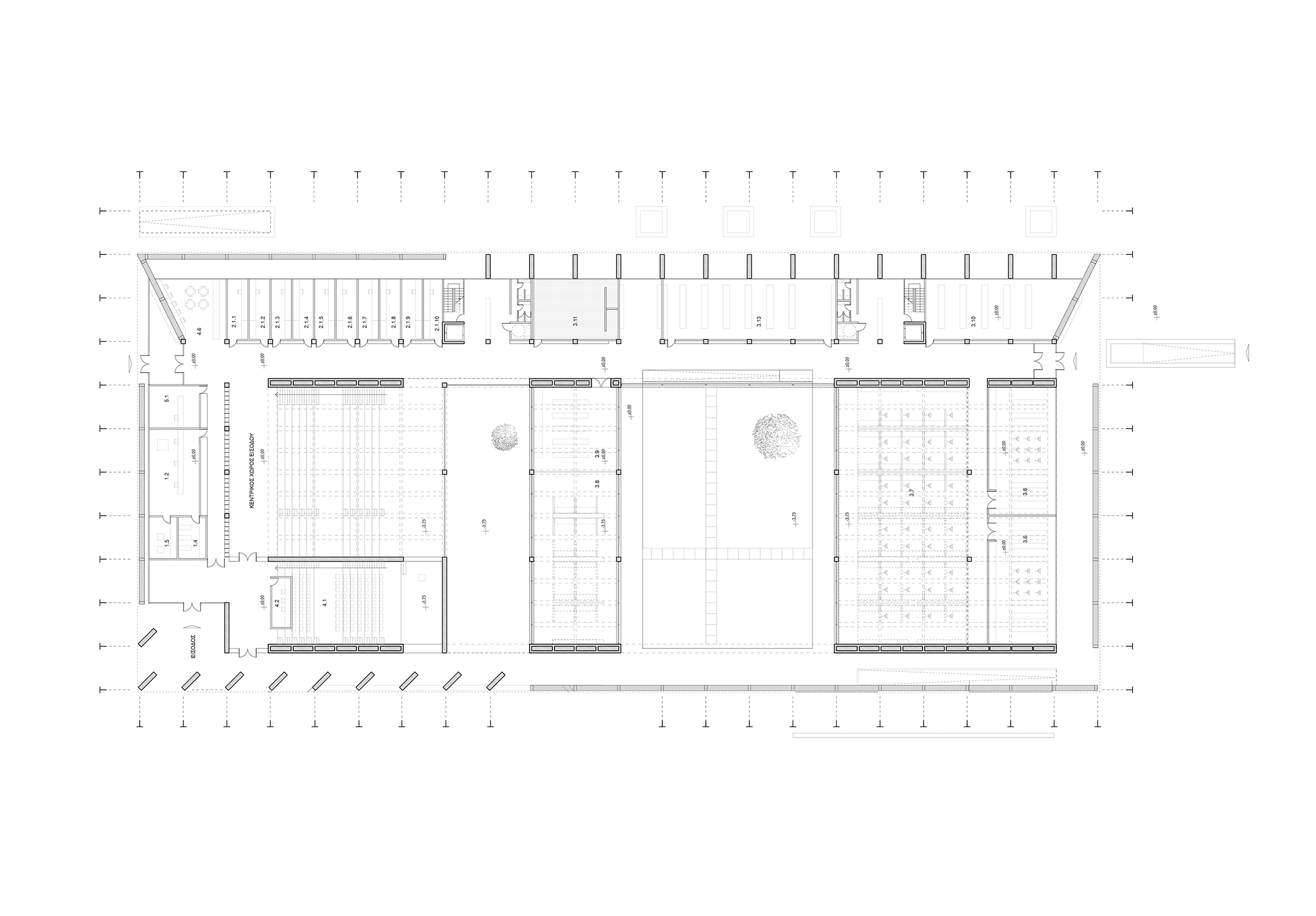
What position does a School of Fine Arts take in the public space and what relationship
Does it build with time?
The inverse-extolling dipole, as a synthetic medium.
The answer to the above questions is attempted through a dive in History. A dive in history that suggests a modern
school of Fine Arts in the present, which will be based on all these multiple and essential long-standing elements of
the past in order to be an active creator of the future. Spatial and organizational solutions tested over time refine the
essence of the creative process and distilling it into a basic dipole; that of introversion and extroversion. The smooth
fluctuation between individual and collective. This range extends from the open structure that calls for engagement
and collaboration members of different qualities and characteristics as their fertile inwardness of its personal dialogue.
The smooth fluctuation between the interior and exterior, private and public, individual and collective is located at the
core of this proposal.
A school silent in its form, resonant in its function
In this proposal, the distinct structure of the school, the dynamic and tangible geometries are expressed in a clear and
unambiguous manner. They refer to light, defined by creating exceptional spatial qualities and tensions. The weaving
with the existing place and campus is achieved through inherent simplicity with the suitable manipulation of their in-between
landscape. The School of Fine Arts in Florina, silent in its form and resonant at its function, operates as a nucleus
of creation and culture which redefines its meaning as an educational institution and as a point of reference in the city.
Light as a regulator and an integral element of creation
The basic regulator of these relationships, members, and elements has been for this proposal the light. The manipulation
of light, basic ¨material¨ in building space, plays a crucial role in the creative process, having a clear and immediate
impact on the artistic result. The multiplicity of solutions and experiences offer to the incarnate creator all those possibilities
to fulfill his or her poetic and artistic concerns.
“Deeply inside it is a matter of light” - G. Seferis
Architects: Evangelos Fokialis, Alkiviadis Pyliotis, Architect Consultant: Mark Lee (Harvard Graduate School of Design) Contributors: Giorgos Chatzopoulos, Adrian Wong, Alexandros Spentzaris, Texts: Alkiviadis Pyliotis, Anastasios Giannakopoulos, 3D Visualization: Konstantinos Koudounis (Architectural Visualisation | Design Strategy), Civil Engineer Consultant: Demetrios Kokas, Mechanical Engineer Consultant: Sourilas Konstantinos (KNS engineering consultants), Location: Florina, Greece, Area: 6400 m^2, Project Year: 2019, Project Type: International Competition Entry