Linear Habitat

Linear Habitat

Texts
Context
Sketches
Diagrams
Drawings
Models
Images

Texts

“A man sets out to draw the world. As the years go by, he peoples a space with images of provinces, kingdoms, mountains, bays, ships, islands, fishes, rooms, instruments, stars, horses, and individuals.

A short time before he dies, he discovers that the patient labyrinth of lines traces the lineaments of his own face.”

 

Jorge Luis Borges

 

 

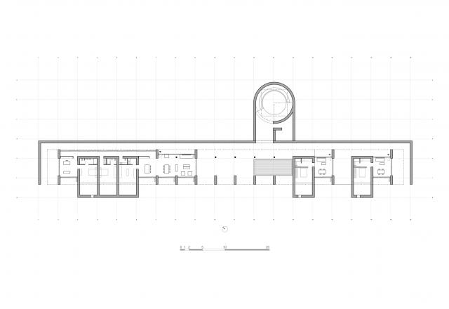
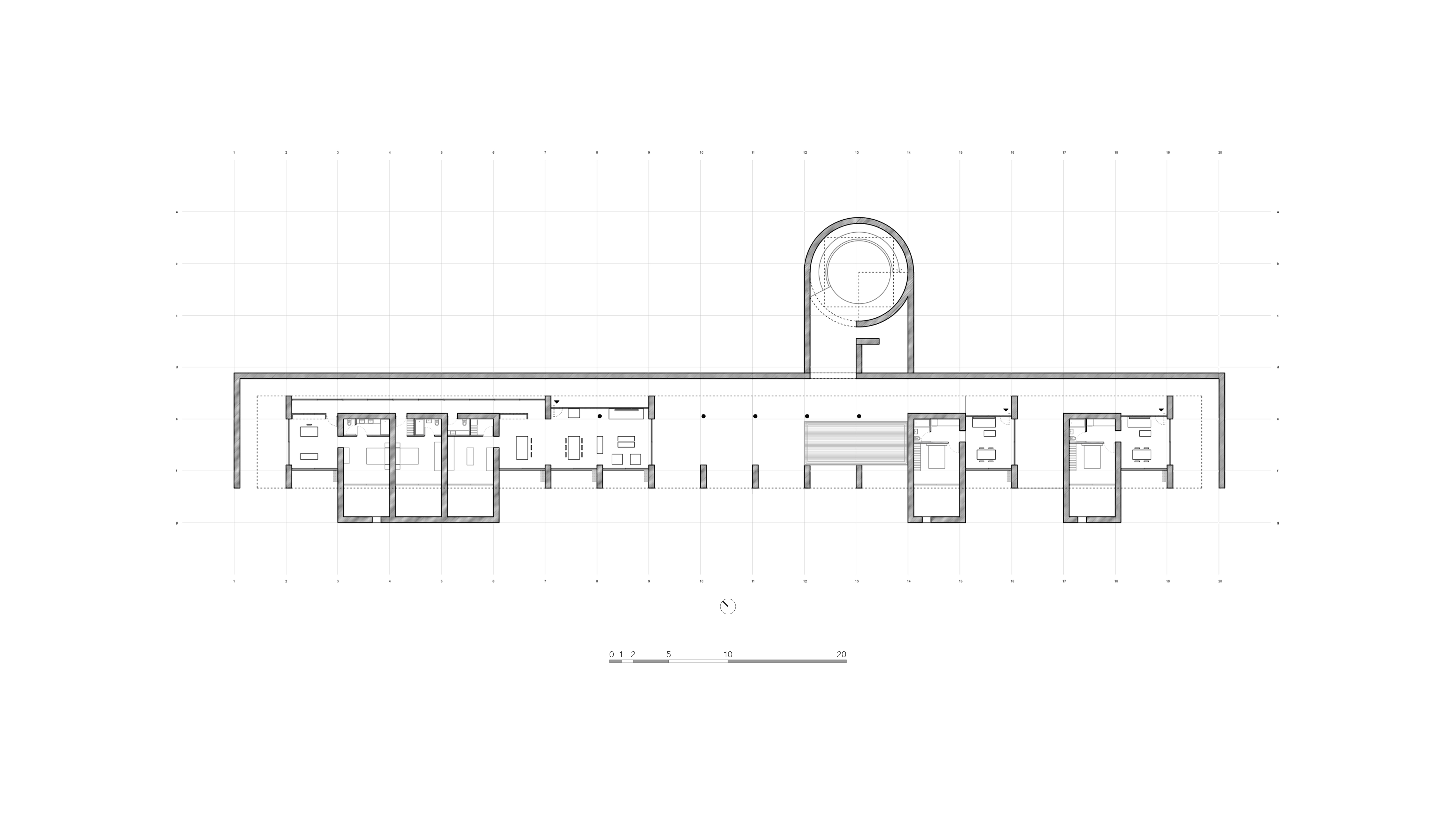
On a stone mountain slope, above the sea in Southern Greece, a three house complex was designed for a family. The steep slope of the plot, the view towards the sea, the ori­entation, and the century-old history of the place, along with the ascetic spirit were some of the most fundamental factors that shaped the architecture of this project.

The design seeks to achieve, with the minimal intervention to the natural landscape, a structure that is born from the ground and creates the qualities of the Mediterranean living; the inside - the outside - the in-between. At the same time, it creates all the neces­sary levels of privacy that a home requires. The synthetic intentions of the project could be described with 4 distinct gestures.

  1. The design of a perfectly linear cut that minimizes excavation and interference with the natural terrain.
  2. The design of a structural system made of prisms and walls along with the cut, carved from the same stone of the excavation, in accordance with the architecture and scale of the historic settlements of the area.
  3. The design of the entrance, antithetical to the linear structure, much like a lighthouse inviting you to enter a spiral downhill course. A game of hiding and revealing the view. A game of light and shadow that expands the concept of the threshold into a transitional experience.
  4. The design of a single linear slab that houses all uses, indoor and outdoor, in order to protect and create the necessary living conditions.

Finally, this architectural approach attempts, with the very same material of the land, to include all uses in an absolutely straight line. With the least bit of effort and work, it seeks to meet the labyrinth of the spatial needs of the modern human, all the while remaining faithful to the spirit of the minimal and absolute necessary shaped this land over the centuries.

Probably Jorge Luis Borges was right. “The labyrinth is not only that intricate form that can  entrap us forever, but sometimes could be a single and precise straight line.”

Technical Data 

Architects: Alkiviadis Pyliotis, Konstantinos Pyliotis  Contributor: Chrysothemi Kouloumenta 3D Visualization: blankwall.avs Mechanical Engineer Consultant: Sourilas Konstantinos (KNS engineering consultants), Sculptor of Marble Model: Georgakas Fotis Location: Mani, Greece Area: 320 m^2 Project Year: 2019 Project Type: Commission, Project Status: Under Construction 

Context

Sketches

Diagrams

An interior space that is expressed as an enclosed stone prism following the analogies/ratios of the Mani structures
A covered semi-open relief space as an intermediate space between indoor and outdoor

Drawings

Models

Images